Flange dn500
Flange dn500, một thành phần không thể thiếu trong các hệ thống ống công nghiệp, đã trở thành một khái niệm quen thuộc trong ngành công nghiệp. Nhưng bạn đã hiểu rõ về nó chưa? Bài viết này sẽ giúp bạn hiểu rõ hơn về Mặt Bích DN500, từ định nghĩa, cấu tạo, tính năng, tiêu chuẩn sản xuất và cả hướng dẫn lắp đặt, sử dụng.
Bài viết này sẽ giúp bạn tìm hiểu sâu hơn về ống inox, từ cấu tạo, ưu nhược điểm cho đến ứng dụng thực tế của nó trong các ngành công nghiệp.
Tổng quan về Flange dn500
Định nghĩa Flange dn500
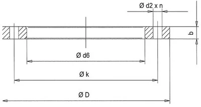
Mặt Bích DN500 là một loại flange có đường kính ngoài 500mm, được sử dụng rộng rãi trong các hệ thống ống công nghiệp để kết nối các đường ống, thiết bị và van. Đặc tiêu của Mặt Bích DN500 đến từ sự linh hoạt và độ bền của nó. Đường kính ngoài 500mm cho phép nó kết hợp hoàn hảo với một loạt các đường ống và thiết bị công nghiệp. Nhờ đó, Mặt Bích DN500 trở thành một yếu tố không thể thiếu trong việc thiết lập hệ thống ống công nghiệp.Mặt Bích DN500 được chế tạo từ nhiều loại vật liệu khác nhau, từ thép không gỉ, thép carbon đến các hợp kim kim loại khác.
Vai trò và ứng dụng của Mặt Bích DN500
Mặt Bích DN500 có vai trò quan trọng trong việc đảm bảo sự an toàn và hiệu quả của các hệ thống ống. Nó được ứng dụng rộng rãi trong nhiều ngành công nghiệp như dầu khí, hóa chất, thủy điện và nhiệt điện. Mỗi loại vật liệu cung cấp một lợi thế riêng, từ độ bền cơ học, khả năng chống ăn mòn, cho đến khả năng chịu lực và nhiệt độ. Bên cạnh đó, Mặt Bích DN500 còn có nhiều loại khác nhau như Slip on Flanges, Weld Neck Flanges, Blind Flanges, Threaded Flanges, v.v..., phù hợp với nhu cầu và điều kiện làm việc cụ thể của từng loại hệ thống ống.
Cấu tạo và tính năng của Mặt Bích DN500
Chất liệu sử dụng trong sản xuất Mặt Bích DN500
Mặt Bích DN500 thường được làm từ thép không gỉ, thép carbon hoặc thép hợp kim, đảm bảo độ bền và khả năng chịu lực tốt. Mặt Bích DN500 ngày càng trở nên phổ biến trong các ngành công nghiệp như lọc dầu, công nghiệp hóa chất, công nghiệp thực phẩm và đóng tàu. Kích thước lớn của nó giúp nó có thể xử lý lượng lớn chất lỏng hoặc khí thải, trong khi khả năng chịu lực và nhiệt độ cao giúp nó đáp ứng được các yêu cầu khắc nghiệt của môi trường công nghiệp

Thiết kế cơ bản của Mặt Bích DN500
Mặt Bích DN500 có thiết kế đơn giản nhưng hiệu quả, bao gồm một phần tròn với đường kính ngoài 500mm và nhiều lỗ bắt ốc vít để kết nối với đường ống hoặc thiết bị khác. Mặt Bích DN500, với đặc điểm kỹ thuật ưu việt và tính linh hoạt cao, không chỉ đem lại hiệu quả trong việc kết nối các đường ống, thiết bị, van mà còn góp phần tăng cường hiệu suất và độ an toàn cho hệ thống ống công nghiệp.
Tính năng đặc trưng của Mặt Bích DN500
Mặt Bích DN500 nổi bật với khả năng chịu áp lực cao, độ bền vững và khả năng chống ăn mòn tốt. Ngoài ra, nó còn dễ dàng lắp đặt và bảo dưỡng, giúp tiết kiệm thời gian và công sức. Chức năng dự trữ áp suất ấn tượng của Mặt Bích DN500 khiến nó trở thành lựa chọn tối ưu trong các ứng dụng công nghiệp đòi hỏi tiêu chuẩn cao. Cấu trúc vững chắc, khả năng tồn tại lâu dài dưới điều kiện khắc nghiệt là một trong những yếu tố phần lớn giúp Mặt Bích DN500 được ưa chuộng.
Tiêu chuẩn sản xuất và kiểm tra chất lượng Mặt Bích DN500
Tiêu chuẩn kỹ thuật áp dụng cho Mặt Bích DN500
Mặt Bích DN500 được sản xuất theo các tiêu chuẩn kỹ thuật nghiêm ngặt như ANSI, ASME, DIN và JIS, đảm bảo chất lượng và an toàn khi sử dụng. Cùng với đó, sở hữu khả năng kháng ăn mòn suất sắc, sản phẩm này đảm bảo hoạt động ổn định, giảm thiểu tình trạng hư hỏng sớm.Đặc biệt nhấn mạnh về việc lắp đặt và duy trì Mặt Bích DN500, quá trình này khá đơn giản và không tốn nhiều công sức. Điều này không chỉ tiết kiệm thời gian lắp đặt, mà còn giảm bớt gánh nặng về chi phí sửa chữa và bảo dưỡng, nâng cao hiệu quả sử dụng.
Quy trình kiểm tra và đảm bảo chất lượng Mặt Bích DN500
Quy trình kiểm tra chất lượng của Mặt Bích DN500 bao gồm việc kiểm tra kích thước, độ dày, chất lượng vật liệu và khả năng chịu lực. Nếu không đạt tiêu chuẩn, sản phẩm sẽ không được phép lưu thông trên thị trường. Tất cả những ưu điểm này biến Mặt Bích DN500 thành một giải pháp hoàn hảo cho nhiều môi trường và ứng dụng khác nhau trong ngành công nghiệp. Với những tính chất đặc biệt như vậy, Mặt Bích DN500 không chỉ được áp dụng trong những ngành công nghiệp đòi hỏi độ chính xác cao mà còn được sử dụng rộng rãi trong nhiều lĩnh vực khác, thể hiện khả năng linh hoạt và đa dụng của sản phẩm.
Hướng dẫn lắp đặt và sử dụng Mặt Bích DN500
Hướng dẫn lắp đặt Mặt Bích DN500
Lắp đặt Mặt Bích DN500 đòi hỏi kỹ năng và kinh nghiệm. Trước hết, bạn cần đảm bảo rằng flange và đường ống hoặc thiết bị cần kết nối có kích thước phù hợp. Sau đó, sử dụng ốc vít để kết nối flange và đường ống, đảm bảo chặt chẽ và an toàn.

Hãy liên hệ với chúng tôi để tìm hiểu thêm về ống inox phù hợp với nhu cầu của bạn. Chúng tôi cam kết cung cấp sản phẩm chất lượng cao và dịch vụ tốt nhất để đáp ứng mọi yêu cầu của bạn trong lĩnh vực ống inox và van inox.
Hướng dẫn sử dụng và bảo dưỡng Mặt Bích DN500
Khi sử dụng Mặt Bích DN500, bạn cần kiểm tra định kỳ để phát hiện sớm các dấu hiệu hỏng hóc. Nếu phát hiện bất kỳ vấn đề gì, bạn nên thay thế flange ngay lập tức để đảm bảo an toàn.
Lựa chọn và mua hàng Mặt Bích DN500
Yếu tố cần lựa chọn khi mua Mặt Bích DN500
Khi mua Mặt Bích DN500, bạn cần chú ý đến chất lượng vật liệu, kích thước, khả năng chịu lực và giá cả. Ngoài ra, bạn cũng nên chọn mua từ những nhà cung cấp uy tín để đảm bảo chất lượng sản phẩm.
Địa chỉ mua Mặt Bích DN500 chất lượng, uy tín
Để mua Mặt Bích DN500 chất lượng, bạn có thể tham khảo các địa chỉ uy tín như Valve.vn, một trong những nhà cung cấp flange hàng đầu tại Việt Nam.
Hy vọng với những thông tin trên, bạn đã hiểu rõ hơn về Flange dn500, từ định nghĩa, cấu tạo, tính năng, tiêu chuẩn sản xuất đến hướng dẫn lắp đặt, sử dụng. Hãy lựa chọn Flange dn500 phù hợp với nhu cầu của mình để đảm bảo hiệu quả và an toàn trong quá trình sử dụng.
Rất mong các bạn quan tâm và theo dõi valve.vn để cập nhật thông tin mới nhất về flange dn500