Cút thép 90 độ là gì? Định nghĩa và vật liệu phổ biến
Cút thép 90 độ: Phụ kiện thiết yếu và giải pháp kỹ thuật tối ưu cho đường ống
Bạn đang đứng trước một bản thiết kế hệ thống đường ống phức tạp với hàng loạt điểm cần đổi hướng? Bạn băn khoăn liệu nên sử dụng phương pháp uốn ống hay dùng phụ kiện rời? Tình huống thực tế cho thấy, rất nhiều kỹ sư và nhà thầu đã phải trả giá đắt bằng việc hệ thống bị rò rỉ hoặc nứt vỡ chỉ sau một thời gian ngắn vận hành do dùng sai cút thép.
Việc chọn sai vật liệu hoặc không tính toán đúng tổn thất áp lực tại các khúc cua 90 độ có thể dẫn đến hiện tượng búa nước, làm rung chuyển và phá hủy toàn bộ kết cấu đường ống. Cút thép 90 là giải pháp phổ biến nhất hiện nay, nhưng để nó thực sự bền bỉ, bạn cần hiểu rõ từ thông số kỹ thuật đến tiêu chuẩn sản xuất. Bài viết dưới đây sẽ cung cấp cái nhìn chuyên sâu của một chuyên gia về loại phụ kiện "nhỏ nhưng có võ" này.

Cút thép 90 độ là gì? Định nghĩa và vật liệu phổ biến
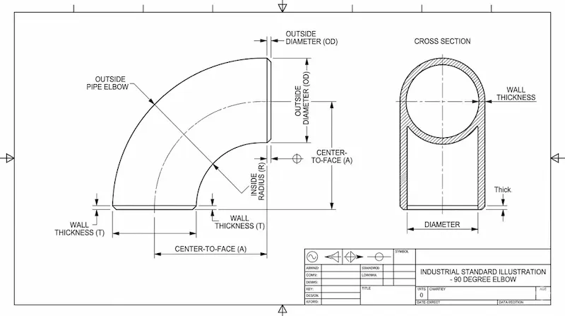
Cút thép 90 (hay còn gọi là khuỷu ống, Elbow 90°) là phụ kiện nối ống được thiết kế để thay đổi hướng dòng chảy của lưu chất theo một góc chính xác là 90 độ. Đây là linh kiện không thể thiếu trong bất kỳ hệ thống đường ống nào, từ dẫn nước, khí nén đến hóa chất và dầu khí.
Về mặt vật liệu, cút thép 90 được sản xuất từ nhiều nguồn nguyên liệu khác nhau để thích nghi với môi trường:
Thép carbon (Carbon Steel): Độ bền cơ học cao, chịu áp tốt, thường dùng cho hệ thống nước và dầu công nghiệp.
Thép mạ kẽm (Galvanized Steel): Được phủ lớp kẽm chống rỉ sét, cực kỳ phổ biến trong các hệ thống PCCC và cấp nước sinh hoạt.
Thép không gỉ (Inox): Chống ăn mòn tuyệt đối, dùng cho thực phẩm, hóa chất và y tế.
Vai trò chính của nó không chỉ đơn thuần là kết nối mà còn là điều hướng dòng chảy một cách ổn định nhất tại các vị trí góc tường hoặc điểm rẽ nhánh vuông góc.
Nguyên lý hoạt động và ảnh hưởng đến dòng chảy
Nguyên lý hoạt động của cút thép 90 dựa trên cơ chế chuyển hướng cưỡng bức. Khi dòng lưu chất đi vào cút, áp lực của dòng chảy sẽ đập trực tiếp vào thành ngoài của cút thép trước khi được dẫn hướng đi tiếp.
Ảnh hưởng kỹ thuật cần lưu ý:
Tổn thất áp lực (Pressure Drop): Tại góc cua 90 độ, dòng chảy bị xáo trộn mạnh tạo ra các dòng xoáy cục bộ. Điều này gây ra tổn thất áp suất cao hơn so với các đoạn ống thẳng hoặc cút 45 độ.
Lực quán tính: Dòng lưu chất tốc độ cao tạo ra lực đẩy lớn lên thành phụ kiện. Nếu cút thép không đạt độ dày (SCH) tiêu chuẩn, hiện tượng mài mòn và nứt vỡ tại điểm tiếp xúc là điều khó tránh khỏi.
Đó là lý do tại sao trong các hệ thống yêu cầu dòng chảy mượt mà, các kỹ sư thường ưu tiên loại bán kính dài (Long Radius) để giảm thiểu ma sát và sự va đập của lưu chất.
Phân loại cút thép 90 phổ biến trên thị trường
Việc phân loại rõ ràng giúp người dùng chọn đúng phụ kiện cho từng ứng dụng cụ thể, tránh lãng phí chi phí đầu tư.
Theo phương pháp kết nối
Cút hàn (Butt Weld): Hai đầu cút được vát mép để hàn trực tiếp vào ống. Loại này chịu áp lực cực cao, mối nối kín khít tuyệt đối, thường dùng cho ống kích thước lớn.
Cút ren (Threaded): Sử dụng các bước ren tiêu chuẩn (NPT hoặc BSP) để vặn trực tiếp. Thường dùng cho các ống kích thước nhỏ (DN15 - DN100) và áp suất trung bình.
Theo bán kính uốn (Radius)
Long Radius (LR): Bán kính uốn bằng 1.5 lần đường kính ống. Giúp giảm sụt áp, dòng chảy êm hơn.
Short Radius (SR): Bán kính uốn bằng 1 lần đường kính ống. Dùng trong không gian hẹp, diện tích thi công hạn chế.
Bảng so sánh nhanh các loại cút thép 90 độ
| Tiêu chí | Cút hàn (BW) | Cút ren | Cút mạ kẽm |
|---|---|---|---|
| Áp lực | Rất cao | Trung bình | Trung bình |
| Độ kín | Tuyệt đối | Tương đối | Tương đối |
| Lắp đặt | Cần thợ hàn chuyên nghiệp | Dễ dàng, tháo lắp được | Dễ dàng |
| Giá thành | Cao | Thấp | Phổ thông |
Thông số kỹ thuật "vàng" cho dân kỹ thuật (SEO Technical)
Để đảm bảo khả năng lắp lẫn và chịu tải, cút thép 90 phải tuân thủ các tiêu chuẩn quốc tế khắt khe.
Kích thước danh định: Từ DN15, DN20... đến DN500 và lớn hơn.
Độ dày thành (Schedule): Đây là thông số cực kỳ quan trọng.
SCH10: Dùng cho áp suất thấp.
SCH40: Tiêu chuẩn phổ biến nhất trong công nghiệp.
SCH80: Dùng cho môi trường áp suất cao, chịu lực mạnh.
Tiêu chuẩn sản xuất:
ASME B16.9: Tiêu chuẩn cho phụ kiện hàn thép.
ASTM A234 WPB: Loại thép carbon tiêu chuẩn cho phụ kiện đường ống.
Nhiệt độ làm việc: Có khả năng chịu tải từ -29°C đến hơn 400°C tùy vào vật liệu thép.

So sánh cút thép 90 với 45 độ và Tee
| Tiêu chí | Cút 90° | Cút 45° | Tee (Tê) |
|---|---|---|---|
| Mục đích | Đổi hướng vuông góc | Đổi hướng chéo | Chia nhánh dòng chảy |
| Tổn thất áp suất | Cao nhất | Thấp nhất | Trung bình |
| Độ rung hệ thống | Mạnh | Nhẹ | Trung bình |
Insight chuyên gia: Khi nào nên dùng 90°? Bạn dùng 90° khi cần bám sát góc tường, đi dọc các vách ngăn hoặc chuyển hướng linh hoạt trong không gian hẹp. Nếu có đủ diện tích, việc kết hợp hai cút 45° thay vì một cút 90° sẽ giúp hệ thống vận hành êm ái hơn nhiều.
Ứng dụng thực tế của cút thép 90
Không khó để tìm thấy phụ kiện này trong các công trình hạ tầng:
Cấp thoát nước & Xử lý nước thải: Sử dụng cút mạ kẽm hoặc cút hàn đen tại các cụm bơm và bể chứa.
Hệ thống PCCC: Đây là linh kiện "xương sống" nối các đầu phun và đường ống dẫn nước chữa cháy dọc hành lang.
HVAC & Khí nén: Chịu được độ rung từ máy nén khí và quạt thông gió lớn.
Dầu khí & Hóa chất: Sử dụng các loại cút đúc áp lực cao để dẫn dầu, khí đốt an toàn.
Sai lầm "chí mạng" thường gặp khi sử dụng
Dùng sai bán kính (SR vs LR): Lắp cút SR cho hệ thống lưu chất tốc độ cao gây ra rung lắc dữ dội và tiếng ồn.
Không tính toán tổn thất áp: Dùng quá nhiều cút 90 độ khiến áp suất cuối đường ống bị tụt mạnh, không đủ lực đẩy cho thiết bị đầu cuối.
Chọn sai vật liệu: Dùng cút thép đen cho nước sinh hoạt gây ra rỉ sét vàng, ô nhiễm nguồn nước và nhanh chóng bị thủng.
Lắp sai kỹ thuật: Hàn không ngấu hoặc siết ren quá chặt làm biến dạng bước ren, gây rò rỉ âm thầm.
Checklist: Cách chọn cút thép 90 đúng chuẩn
Để hệ thống của bạn vận hành trơn tru trong 20-30 năm, hãy kiểm tra danh sách sau trước khi mua hàng:
Đường kính (DN): Phải khớp hoàn toàn với đường kính ngoài của ống dẫn.
Kiểu kết nối: Ưu tiên nối ren cho ống nhỏ, nối hàn cho ống chịu áp suất cao.
Bán kính uốn: Chọn Long Radius nếu muốn dòng chảy ổn định.
Vật liệu: Inox cho hóa chất, mạ kẽm cho nước sạch/PCCC, thép đen cho dầu.
Độ dày (SCH): Phải đồng nhất hoặc cao hơn độ dày của ống dẫn để đảm bảo an toàn.
Hướng dẫn lắp đặt đúng kỹ thuật
Vệ sinh: Làm sạch bụi bẩn, dầu mỡ tại đầu ống và lòng cút để đảm bảo mối nối sạch.
Với cút hàn: Cần vát mép ống, cố định vị trí bằng đồ gá. Thực hiện hàn điểm trước khi hàn kín toàn bộ chu vi để tránh biến dạng.
Với cút ren: Quấn cao su non (băng tan) đúng chiều kim đồng hồ, siết lực vừa đủ bằng mỏ lết chuyên dụng.
Thử áp (Pressure Test): Sau khi lắp đặt xong, bắt buộc phải thử áp lực nước hoặc khí để phát hiện các lỗ rò li ti trước khi bàn giao.
Câu hỏi thường gặp (FAQ)
1. Cút thép 90 độ có chịu được áp lực 20 bar không?
Có, nếu bạn chọn loại cút hàn SCH40 trở lên hoặc cút đúc áp lực (Class 3000). Luôn kiểm tra thông số áp suất trên catalog của nhà sản xuất.
2. Khi nào bắt buộc dùng Long Radius (LR)?
Trong các hệ thống dẫn bùn, nước có cặn hoặc lưu chất tốc độ cao. LR giúp giảm hiện tượng xói mòn thành ống và giảm sụt áp.
3. Cút thép mạ kẽm có bị rỉ sét không?
Lớp mạ kẽm bảo vệ thép khỏi oxy hóa rất tốt. Tuy nhiên, nếu lớp mạ bị xước hoặc dùng trong môi trường nước biển, nó vẫn có thể bị rỉ sau một thời gian dài.
4. Nên dùng cút uốn hay cút đúc?
Cút đúc sẵn có độ dày đồng đều và tính thẩm mỹ cao hơn, chịu lực tốt hơn so với việc uốn ống từ đoạn thẳng (vốn dễ làm mỏng thành phía ngoài).
Kết luận
Cút thép độ là mắt xích quan trọng quyết định sự ổn định của toàn bộ kiến trúc đường ống. Việc hiểu rõ về vật liệu, bán kính uốn và các tiêu chuẩn ASME sẽ giúp bạn tránh được những lỗi kỹ thuật sơ đẳng nhưng tốn kém. Hãy luôn ưu tiên các sản phẩm có chứng chỉ CO/CQ và đúng thông số Schedule để bảo vệ an toàn cho công trình Cút thép 90 độ.